類型
辦公空間
辦公空間

上海閔行大虹橋5100平米辦公樓裝修之公司會議室設計效果,這是一個小型的會議室,可以容納30人的會議。
上海閔行大虹橋5100平米辦公樓裝修之前臺接待大廳設計效果,從大門進來,前臺設計在右手邊,接待和等候區設計在左手邊。
上海閔行大虹橋5100平米辦公樓裝修之休息區設計效果圖片,這是一個在十幾平米的半開放式的休息區,簡單設計。
上海閔行大虹橋5100平米辦公樓裝修之辦公區設計效果,辦公區設計跟休息區域之間只有一條過道之隔,員工長時間的工作之中可以選擇中間小休一下。
上海閔行大虹橋5100平米辦公樓裝修之公司接待餐飲包廂設計效果,這個包間在28平米,可以提供十人的商務用餐。
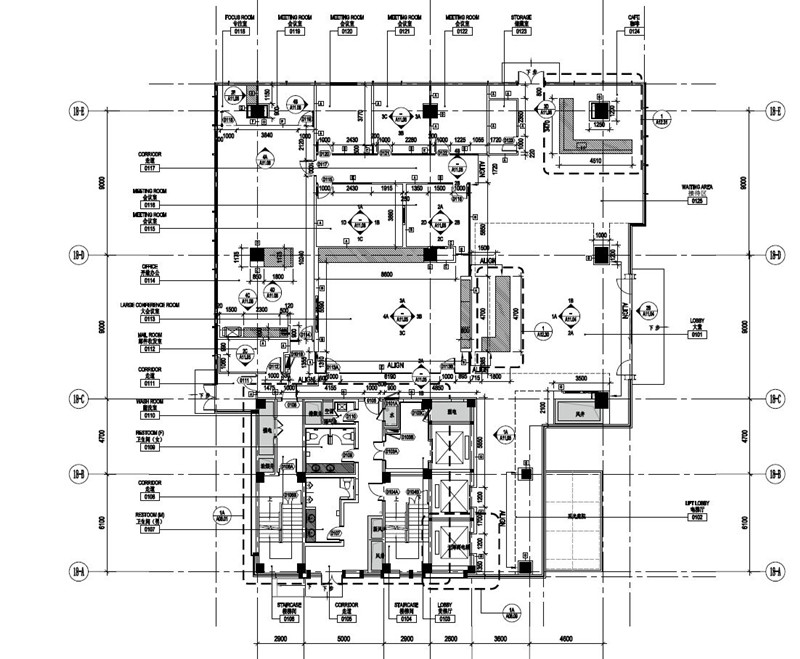
上海閔行大虹橋5100平米辦公樓裝修之公司平面布置圖。